珊珊为何来迟|109㎡现代风三居室,更多的沟通和更多的陪伴是你梦想中的家

文章图片

文章图片

文章图片
【珊珊为何来迟|109㎡现代风三居室,更多的沟通和更多的陪伴是你梦想中的家】

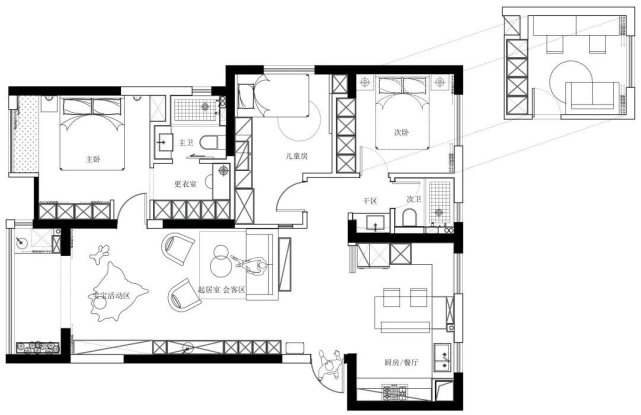
房子是109㎡的三居室 , 部分墙体业主已经做了改动 。 业主要求保留两间主要的卧室 , 另外一间作为机动的空间去使用 , 宝宝目前比较小 , 活动量比较大 , 希望家庭更多一点沟通 , 更多一点陪伴 。
客厅也叫起居室 , 是主人与客人会面的地方 , 也是房子的门面 。 客厅的摆设、颜色都能反映主人的性格、特点、眼光、个性等 。 客厅宜用浅色 , 让客人有耳目一新的感觉 。
客厅没有装电视 , 但提前预留了投影仪幕布 , 周末偶尔好友相聚可以看看球赛 , 一家人也可以一起看 。
设计师从新定义客厅方式 , 采用环绕式座位布局 , 面对面而坐更拉近距离 , 增强温馨感 。
这个角度可看到入门换鞋凳处 , 连着鞋柜做了小格子层板 , 方便随手放置小物件 , 手机钥匙等 。
宝宝目前比较小 , 随着不断成长 , 小男孩的活动量也会比较大 , 于是增设了儿童活动区 , 不管是沙发处还是豆袋都能随意互动 。
无论家居面积大小 , 卧室总是不能忽略的一个场所 。 装修时 , 有些小细节稍不注意 , 就可能影响到每天的睡眠质量和生活状态 , 所以 , 卧室装修是重中之重!
床头刷了灰色水泥漆 , 旁边利用户型本身的缺点制作简易的衣柜 , 增加收纳 , 方便日常起居衣物准备 。
厨房是家里装修时的重点 , 不仅要实现基本的烹煮功能 , 还要美观大气方便 。 因此在装修之初 , 就应该考虑到厨房装修的各种情况 , 避免遗憾 , 以至完美 。
厨房采用集成灶减少油烟 , 白色柜门做了可爱的饺子把手 。 整个厨房满足了业主的需求 , 洗碗机、蒸烤箱、冰箱一应俱全 。
客厅、卧室、卫生间和厨房等主要功能间的尺寸以及比例适中 , 有利于采光和通风 , 居住起来舒适、方便 。
经验总结扩展阅读
- 林庆昆|《完美伴侣》“离婚了,我就没有家了!”林庆坤为何是这个反应?
- 葛薇龙|三刷《第一炉香》:明知道乔琪不爱自己,葛薇龙为何还要嫁给他?原因有三
- 全麦面包 为何减肥瘦了十几斤,体型却没变化?或跟5个原因有关,早做了解
- 分析面部美学分析一下,为何一些演员扮演古装会变丑
- 两性关系|为何男人害怕40岁的女人?男人坦言:原因只有3点
- “我们公司只招聘未婚人士”,为何企业会有这样的要求?
- 孙磊|完美伴侣:孙磊年薪200万,为何又被开除?两点原因说明孙磊活该
- 江南征|《王牌部队》高粱与江南征的爱情,为何一波三折?
- 完美伴侣:孙磊年薪200万,为何又被开除?两点原因说明孙磊活该
- 吴敏 完美伴侣:吴敏因为爱情而来的婚姻,为何走到如今局面?三个原因

 
   
   
   
   
   
   
   
   
   
   
   
  